CRAFTSMAN STYLE DADU OVER SINGLE CAR GARAGE
Located in the charming Belvedere neighborhood, this second-level DADU sits above a single-car garage, replacing a previously aging detached structure. Thoughtfully designed, the one-bedroom unit offers elevated views of the mountains and glimpses toward downtown.
EXTERIOR BEFORE IMAGE
EXTERIOR AFTER IMAGE
AFTER EXTERIOR VIEW
AFTER INTERIOR VIEW OF GREAT ROOM SPACE
RENDERED AFTER EXTERIOR IMAGE FROM ALLEY AT SE
RENDERED AFTER EXTERIOR IMAGE FROM ALLEY AT NE
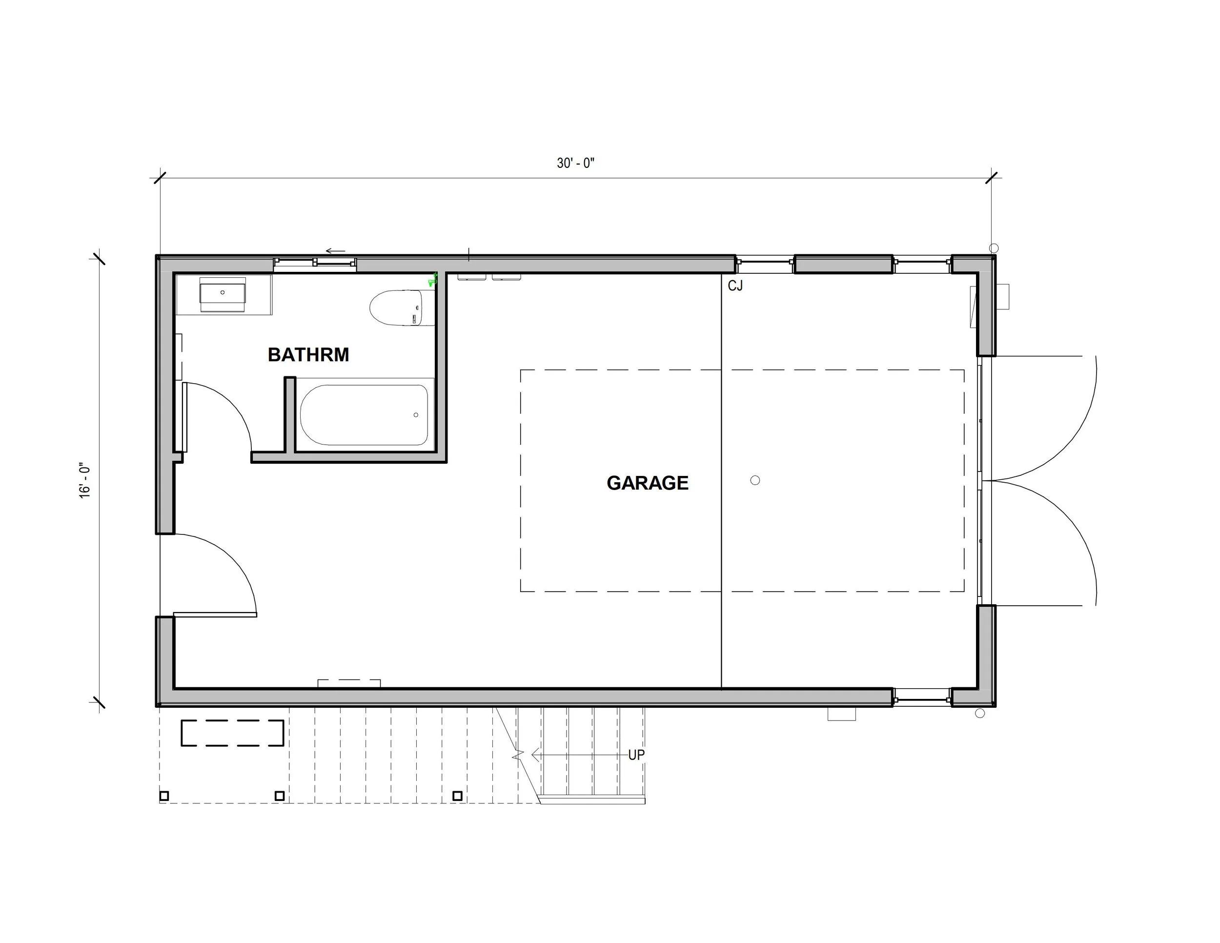
GROUND LEVEL DADU FLOOR PLAN
SECOND LEVEL DADU FLOOR PLAN
