3-BEDROOM DADU WITH ATTACHED GARAGE
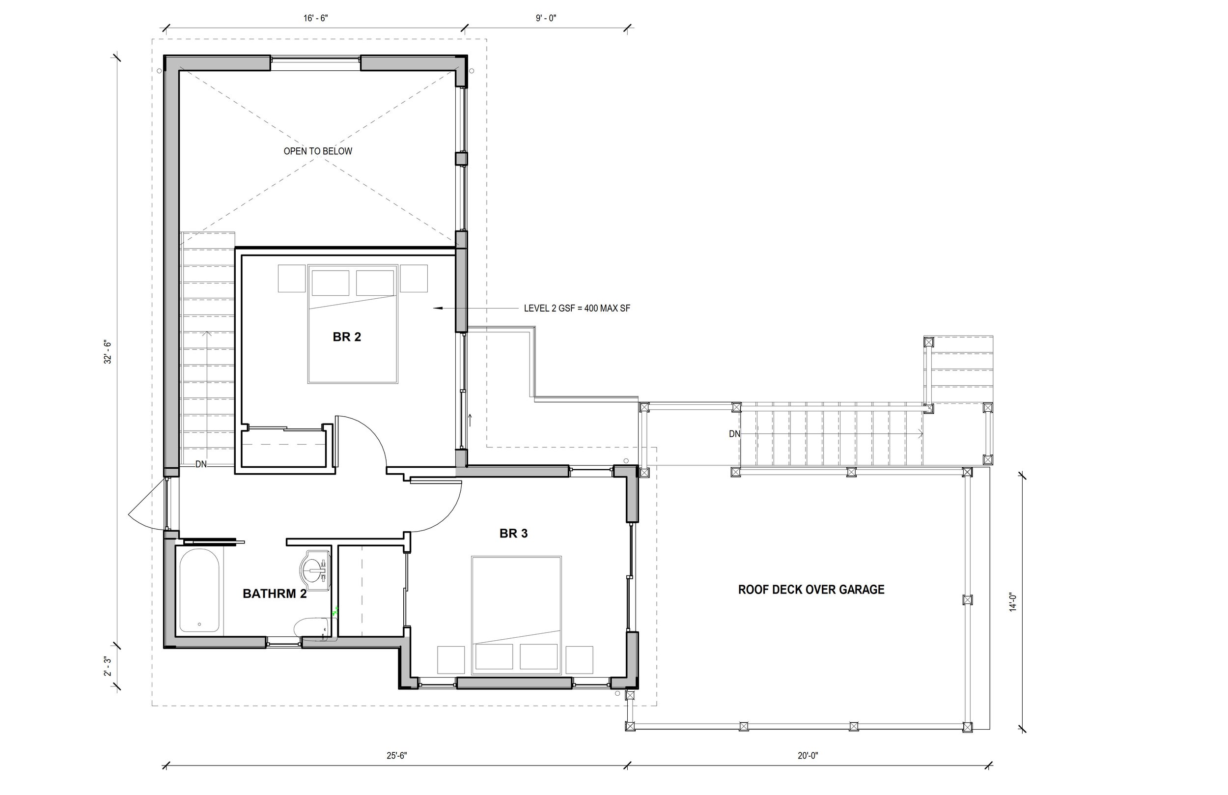
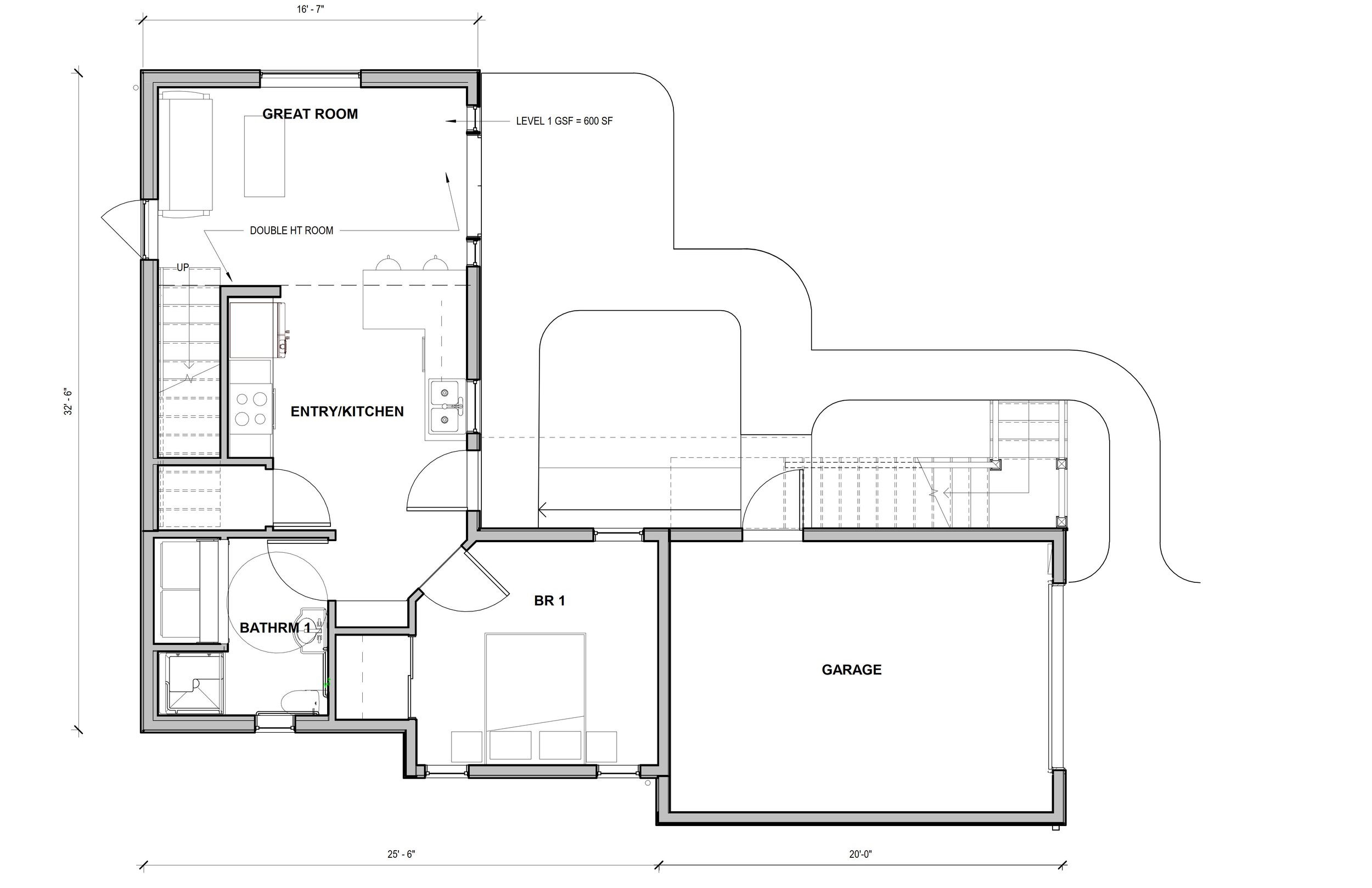
This client envisioned a two-story DADU with a ground floor designed to accommodate an aging-in-place relative, including ample space for a main-level bathroom. The upper floor features two bedrooms, a bathroom, and a connected rooftop deck above a single-car garage.
EXTERIOR 3D CONCEPTUAL IMAGE
EXTERIOR 3D CONCEPTUAL IMAGE
LEVEL 1 FLOOR PLAN
LEVEL 2 FLOOR PLAN
