COMING SOON: NEW 2-BEDROOM DADU OVER NEW 2-CAR GARAGE
This project involved building a new 2-car garage with a 2-bedroom 1-bathroom dwelling above the garage. The Owners needed to remove an older existing garage and maximize parking off the alley access. Views to downtown also needed to be maintained from the primary residence. The result was a Craftsman Style DADU with ample parking adjacent to it and within its new 2-car garage.
BEFORE IMAGE
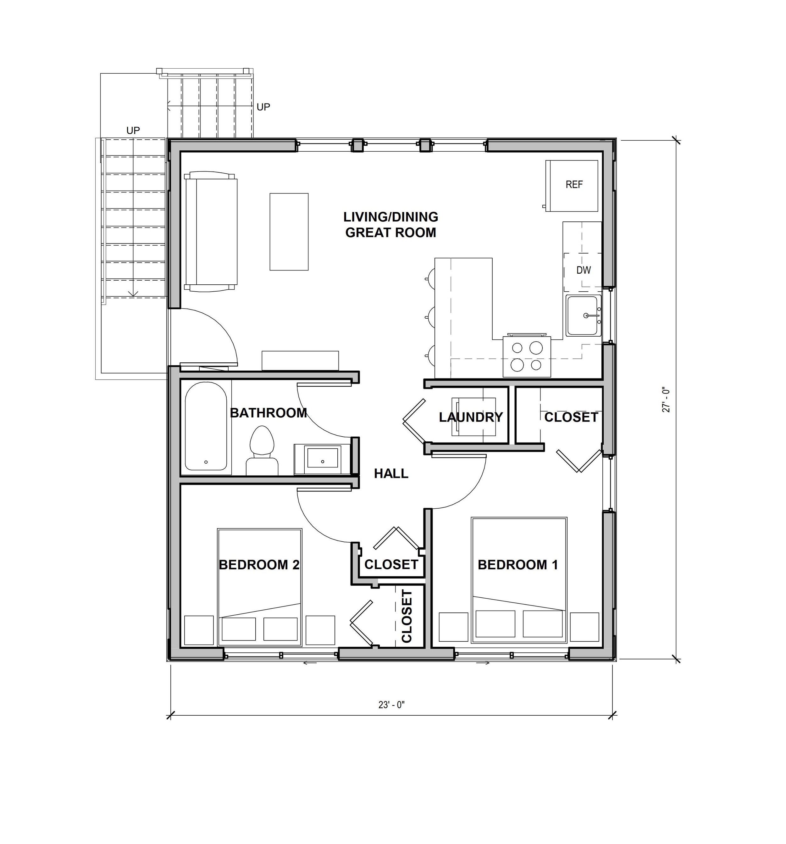
The DADU now wrapping up construction includes a 570 SF 2-bedroom apartment above a 570 SF 2-car garage.
RENDERED VIEW TOWARD DADU ENTRANCE
RENDERED VIEW TOWARD DADU FROM ALLEY
GROUND LEVEL GARAGE FLOOR PLAN
SECOND LEVEL DADU FLOOR PLAN
Project exterior is complete with interior to be completed in 2024.
PRELIMINARY IMAGE TO DADU ENTRY
PRELIMINARY IMAGE FROM ALLEY
