Modern DETACHED ACCESSORY DWELLING
This West Seattle project transforms an underutilized backyard into a modern detached accessory dwelling unit (DADU) designed for flexible, multi-generational living. Originally envisioned as a schoolhouse and family gathering space, the home was designed to eventually serve as a comfortable residence for visiting grandparents. The design emphasizes energy efficiency, natural light, and a strong connection to the surrounding yard.
Design Features
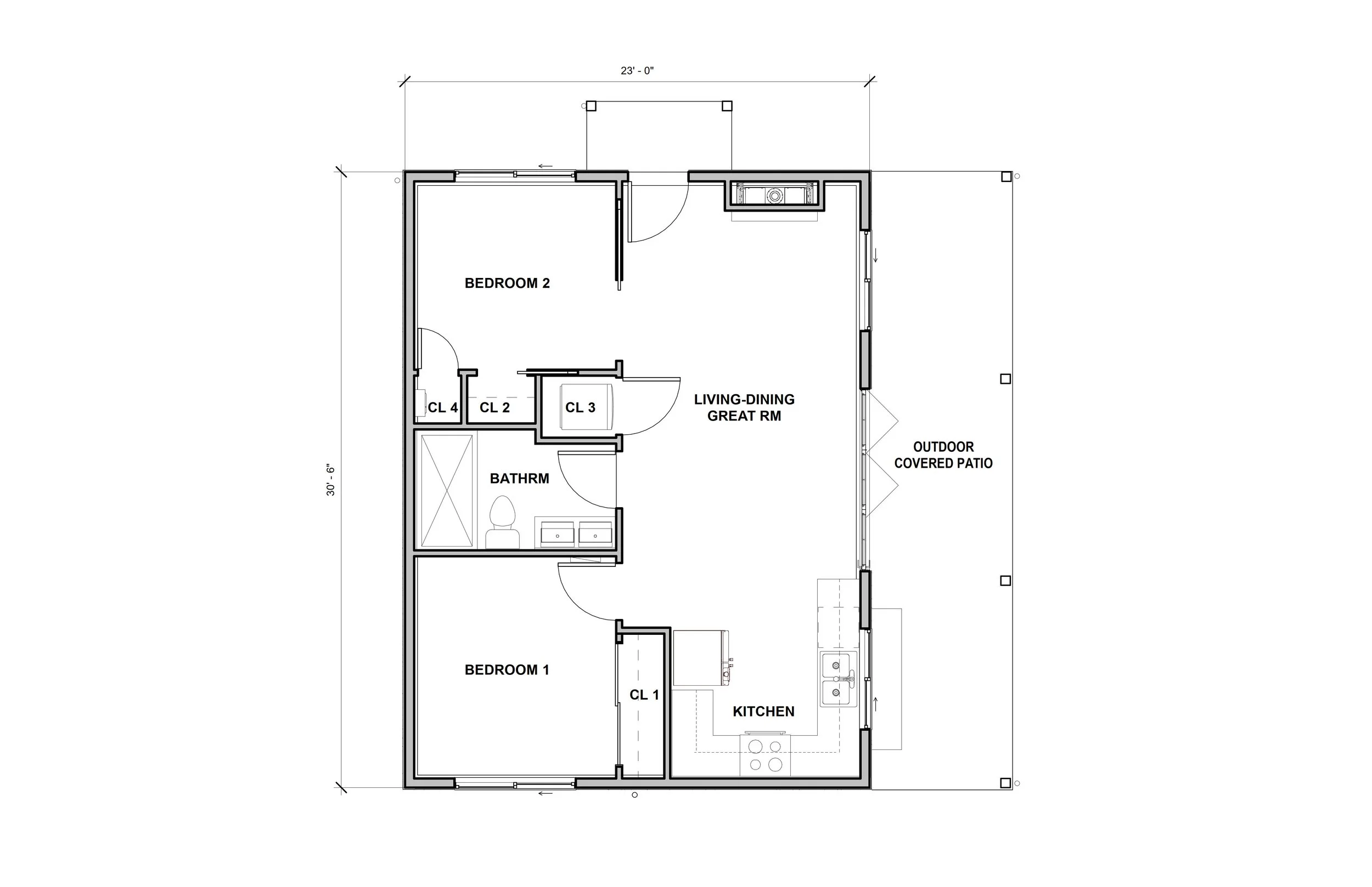
• Custom two-bedroom detached accessory dwelling unit (DADU)
• Single-level layout designed for accessibility and efficient use of space
• Modern design featuring a shed roof and vaulted great room
• Large windows that maximize natural light and views of the backyard
• Open-concept living space creating a bright and airy interior
• Flexible design supporting multi-generational living and evolving family needs
• Energy-efficient design and environmentally conscious planning
• Positioned on the site to provide privacy from the primary residence while maintaining connection to the property
EXTERIOR BEFORE IMAGE
RENDERED AFTER IMAGE
EXTERIOR AFTER IMAGE
EXTERIOR VIEW FROM YARD
INSIDE TO OUTSIDE CONNECTION
Project Information
Location: West Seattle, Seattle, WA
Project Type: Detached Accessory Dwelling Unit (DADU)
Size: 650 SF
Configuration: 2 Bedrooms
Structure: Wood-framed single-level residence
Status: Completed Summer of 2025
Civil: Furr Engineering
Structural: Wilson-Haj Engineers
Construction: Chain Construction
TESTIMONIAL
“We are very grateful for all the work you have done on this project for us. I appreciate you and all that you do. ”
ADDITIONAL INTERIOR IMAGES
FLOOR PLAN
SINGLE-STORY DADU GROUND FLOOR PLAN
